Diseño de reposición plaza Gerardo Poblete Hernández -ex Plaza Brasil- presentaron a los vecino el Minvu y la Municipalidad de Iquique
Actualidad 10 julio, 2022 0
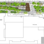
Poco más de 3.000 metros cuadrados de superficie, 400 mt2 adicionales al proyecto original, tendrá la nueva «Sacerdote Gerardo Poblete» (ex Plaza Brasil ) que el Ministerio de Vivienda y Urbanismo, en coordinación con el municipio de Iquique y la SEREMI de Desarrollo Social, están impulsando para recuperar este... Leer más

